Nieuwbouw Gelijkvloerse Villa in Calpe nabij centrum

Ref: P5598

Nieuwbouw

1.190.000
139
3
2
84
Foto's
Boek meteen een afspraak
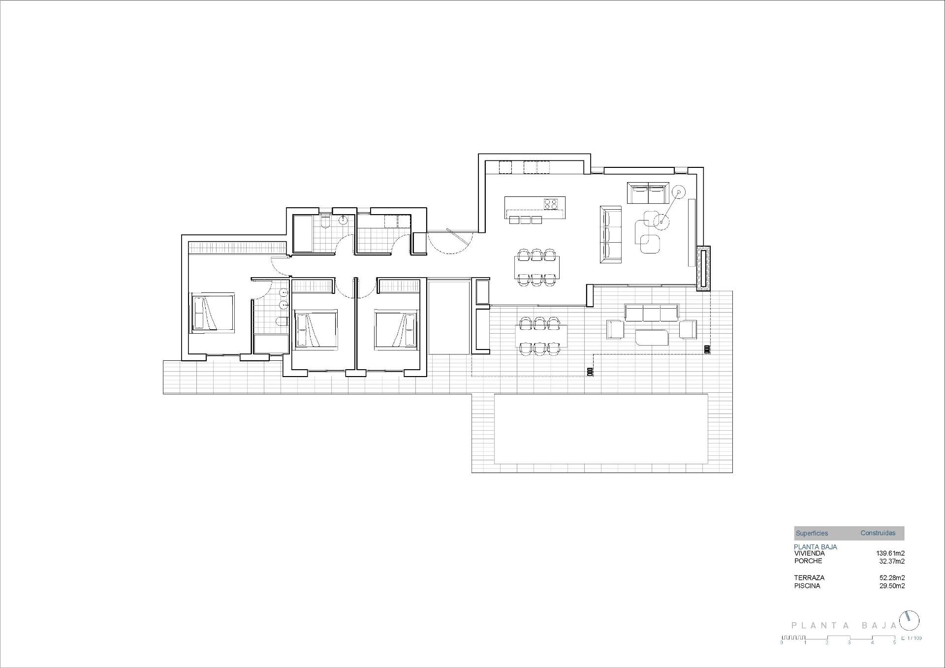
NIEUWBOUW VILLA IN CALPE Nieuwbouwvilla gelegen in een van de woonwijken die de voorkeur genieten van alle inwoners van Calpe, vanwege de nabijheid van het stadscentrum, de stranden en tegelijkertijd omdat het een rustige maar veilige buurt is, omdat het aan de rand van het stadscentrum ligt. De woning is gepland op een enkele verdieping, wat dit project praktisch en comfortabel maakt. Het hele perceel is omheind en heeft binnen een haag van cipressen, wat zorgt voor privacy en een aangename omgeving. Vanuit de hoofdingang van het huis hebben we toegang tot een hal, van waaruit we aan de linkerkant toegang hebben tot het daggedeelte, bestaande uit een woonkamer met eetkamer en open keuken met eiland. Vanuit de woonkamer hebben we toegang tot de buitenkant, waar we een overdekte veranda hebben met barbecue en een groot terras met zwembad van 40m2. Aan de rechterkant van het huis is het slaapgedeelte, met 4 slaapkamers: de master suite met kleedkamer en badkamer, een andere slaapkamer met en-suite badkamer en nog twee slaapkamers die een badkamer delen. Er is ook een wasruimte. Buiten is er een parkeerplaats met een pergola in de vorm van een zeil voor twee auto's. Calpe, een van de steden van La Marina Alta, ligt aan de noordkust van de provincie Alicante, omringd door de steden Altea, Benidorm, Teulada-Moraira, Benissa. Calpe heeft een prachtige mix van oude Valenciaanse cultuur en moderne toeristische faciliteiten. Het is een prima uitvalsbasis om de omgeving te verkennen of te genieten van de vele plaatselijke stranden. Calpe alleen al heeft drie van de mooiste zandstranden aan de kust. Calpe heeft ook twee zeilclubs: Real Club Náutico de Calpe en Club Náutico de Puerto Blanco. Vissersdorp Calpe is nu omgetoverd tot een toeristische trekpleister, de stad ligt op een ideale locatie, gemakkelijk bereikbaar via de snelweg A7 en de N332 die van Valencia naar Alicante loopt; het is ongeveer 1 uur rijden van het vliegveld van Alicante en 1,5 uur van het vliegveld van Valencia.

Locatie

38.651934, 0.056675

Interesse in dit pand?

Contacteer ons

Tel
Afbeelding
Annelies Verstraete

Annelies Verstraete

+32 476 61 23 12
Sluiten

Annelies Verstraete

+32 476 61 23 12

Zon, zee en... Ana

Afbeelding
Annelies Verstraete

Ana is het soort mens dat je meteen aanspreekt. Nuchter en oprecht, maar altijd met pit. Ze houdt van open gesprekken, een goed gevoel voor timing en een vleugje humor op het juiste moment. Ze is er niet om je iets aan te smeren, wel om mee te denken en te voelen wat écht bij je past – op een rustige, eerlijke manier.

In Spanje noemt iedereen haar Ana, en dat voelt helemaal juist. Ze houdt van het buitenleven, van stevige wandelingen in de bergen tot eindeloze fietstochten langs de kust. En als het even kan, sluit ze de dag af op zee – voeten omhoog, bravas op tafel, een glaasje sangria blanca erbij, en haar gezin dicht in de buurt.

Ana is geen makelaar in pak en das, wel iemand die je rustig begeleidt, eerlijk advies geeft en weet wat het is om écht ergens thuis te komen. Je hoeft haar maar één keer te ontmoeten om te weten: deze vrouw doet haar job met hart en ziel – en met plezier.

Uw dream Estate nog niet gevonden?

Wij gaan graag actief op zoek naar uw droomwoning of vakantie-verblijf. Een charmante pied-à-terre, riante villa of plek onder de zon. Als vaste woonst of als investering voor de toekomst. Laat ons weten wat u zoekt. We vinden het voor u, en met u.